Pavement licence consultation for Ten and Six, Shrewsbury

Proposal

Premises

Ten And Six
15 - 16 Mardol
Shrewsbury
Shropshire
SY1 1PY

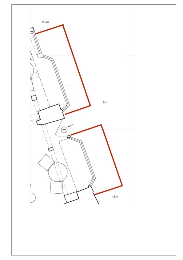
Application description

An area 8m x 2.2m starting on the left-hand side of the building, tapering to 1.6m on the right-hand side of the building. Monday to Sunday: 10:30am to 1am.

How to get involved

Contact the Licensing Team to comment on this application: licensing@shropshire.gov.uk or 0345 678 9026.

Other consultations which might interest you

Wedding venue application for Moat Hall Barns

Have your say on this new application for a venue for the solemnisation of marriages and the registration of civil partnerships.

Wedding venue application for The Park House Hotel

Have your say on this new application for a venue for the solemnisation of marriages and the registration of civil partnerships.

Draft Shrewsbury Town Centre Design Code

The Draft Shrewsbury Town Centre Design Code is a detailed framework designed to enhance the character and visual appeal of Shrewsbury town centre through high-quality design.